avukat

FLUIDISTOR – GASDURCHFLUSSMESSER GD 300 EX – Zwischenflansch (Wafer)

  • Einheitliche Einbaulänge von 65 für alle Nennweiten

  • Einfacher Austausch von bereits verbauten Durchflussmessern

  • Simple und platzsparende Montage unabhängig vom verbauten Flanschtyp (ISO oder ASME Flansch)

  • Oszillierendes Messprinzip ohne bewegte Teile – kein Verschleissteile

  • Hohe Genauigkeit (±1,5 % des Messwertes)

  • Messbereich von 1:100
GD300WA-GDR1501

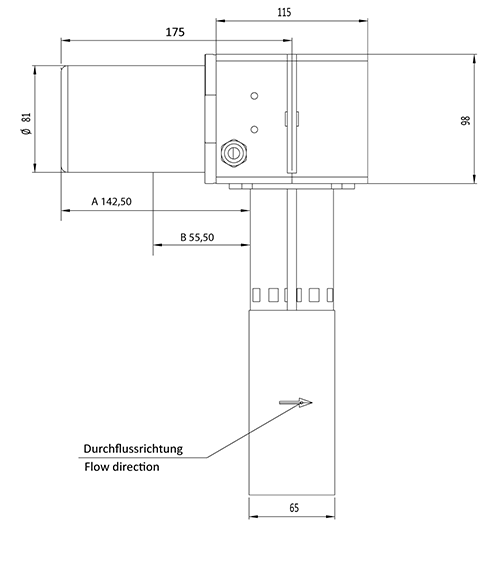
Der Wafer-Prozessanschluss ist die leichteste Gehäuseversion für die Montage zwischen Rohrflanschen. 

Das Gerät wird zwischen zwei Rohrflansche eingebaut und mit den Schrauben der Flansche festgezogen. Das macht den Wafer-Prozessanschluss unabhängig vom anlagenseitig verbauten Flanschtyp.

Die Einbaulänge des GD 300 (Ex) mit Wafer-Prozessanschluss beträgt unabhängig von der Nennweite (DN) 65 mm. Dadurch kann eine einfache und platzsparende Installation zwischen ISO- oder ASME-Flanschen realisiert werden.

Technische Daten

Beschreibung

Nennweite (NW)

DN 25 - DN 250

Prozessanschluss

Zwischenflansch (Wafer) Einbaulänge: 65 mm

Druckbereich

0,5 bar, 10 bar, 16 bar, 40 bar

Temperatur Medium

NON ATEX: -20 bis +120°C
ATEX: -20 bis +80°C

Umgebungstemperatur

NON ATEX: -20 bis +120°C
ATEX: -20 bis +45 °C

Messkopf & Labyrinth

Material Edelstahl 1.4404 (V4) oder Aluminium (AL)

Rohrkörper

Material Edelstahl 1.4404 (V4) 

Fühler

Material Platin

Schutzklasse

IP 65

Ausgang A:

Nativer Pulsausgang: Puls 24 V, DC, max. 200 Hz (Pulsweite 1 - 2 ms)
Direktanschluss des Platindrahtsensors an an Mengenumwerter GDR 150x (nur NON-ATEX)

Ausgang B:
HB 300 (Ex)

Nativer Pulsausgang: Puls 24 V, DC, max. 200 Hz (Pulsweite 1 - 2 ms) Statusausgang für Sensorbruchüberwachung: 24 V, DC Zum Anschluss an Mengenumwerter GDR 150x (ATEX und NON-ATEX)

Ausgang C: 
HB 300 (Ex)

Pulsausgang: Pulse 24 V, DC, 1 Pulse = 0.01, 0.1, 1, 10 oder 100 m3
Stromschnittstelle: (0)4 - 20 mA = 0 - x Nm3/h
Statusausgang für Sensorbruchüberwachung: 24 V, DC
Norm: DIN 1343, DIN 6358, DIN ISO 2533, DIN 102/ISO 1-1975
Festwert Temperatur: -50 °C bis +200°C
Festwert Absolutdruck: -0,8 bar bis 100 bar
Zum Anschluss an übergeordnetes System (SPS) (ATEX und NON-ATEX)

ATEX-Zulassung

ATEX-Zulassung: Ex II 1 / 2 G Ex ia / e mb IIC T4 Ga / Gb (Zertifikat Nr. EX5 13 07 14689)

Absperrventile

Option AVF
Kugelhahn-Absperrventile für GD 300 zum Ein- und Ausbau des Heissdraht-Sensors ohne Entleerung des Systems

Nennweite (NW)

DN 25 - DN 250

Prozessanschluss

Zwischenflansch (Wafer) Einbaulänge: 65 mm

Druckbereich

0,5 bar, 10 bar, 16 bar, 40 bar

Temperatur Medium

NON ATEX: -20 bis +120°C
ATEX: -20 bis +80°C

Umgebungstemperatur

NON ATEX: -20 bis +120°C
ATEX: -20 bis +45 °C

Messkopf & Labyrinth

Material Edelstahl 1.4404 (V4) oder Aluminium (AL)

Rohrkörper

Material Edelstahl 1.4404 (V4) 

Fühler

Material Platin

Schutzklasse

IP 65

Ausgang A:

Nativer Pulsausgang: Puls 24 V, DC, max. 200 Hz (Pulsweite 1 - 2 ms)
Direktanschluss des Platindrahtsensors an an Mengenumwerter GDR 150x (nur NON-ATEX)

Ausgang B:
HB 300 (Ex)

Nativer Pulsausgang: Puls 24 V, DC, max. 200 Hz (Pulsweite 1 - 2 ms) Statusausgang für Sensorbruchüberwachung: 24 V, DC Zum Anschluss an Mengenumwerter GDR 150x (ATEX und NON-ATEX)

Ausgang C: 
HB 300 (Ex)

Pulsausgang: Pulse 24 V, DC, 1 Pulse = 0.01, 0.1, 1, 10 oder 100 m3
Stromschnittstelle: (0)4 - 20 mA = 0 - x Nm3/h
Statusausgang für Sensorbruchüberwachung: 24 V, DC
Norm: DIN 1343, DIN 6358, DIN ISO 2533, DIN 102/ISO 1-1975
Festwert Temperatur: -50 °C bis +200°C
Festwert Absolutdruck: -0,8 bar bis 100 bar
Zum Anschluss an übergeordnetes System (SPS) (ATEX und NON-ATEX)

ATEX-Zulassung

ATEX-Zulassung: Ex II 1 / 2 G Ex ia / e mb IIC T4 Ga / Gb (Zertifikat Nr. EX5 13 07 14689)

Absperrventile

Option AVF
Kugelhahn-Absperrventile für GD 300 zum Ein- und Ausbau des Heissdraht-Sensors ohne Entleerung des Systems

Messbereiche

NW Blende 13 Blende 15 Blende 17
25
0,20 - 20 m3/h​
0,35 - 35 m3/h​
0,70 - 70 m3/h​
32
0,20 - 20 m3/h​
0,60 - 60 m3/h​
1,00 - 100 m3/h​
40
0,20 - 20 m3/h​
0,90 - 90 m3/h​
2,00- 200 m3/h​
50
0,20 - 20 m3/h​
1,10 - 110 m3/h​
2,50 - 250 m3/h​
65
0,90 - 90 m3/h​
1,70 - 170 m3/h​
4,50 - 450 m3/h​
80
1,40 - 140 m3/h​
4,50 - 450 m3/h​
8,00 - 800 m3/h​
100
2,70 - 270 m3/h​
6,50 - 650 m3/h​
10,00 - 1000 m3/h​
125
4,00 - 400 m3/h​
8,00 - 800 m3/h​
15,00 - 1500 m3/h​
150
6,00 - 600 m3/h​
12,00 - 1200 m3/h​
30,00 - 3000 m3/h​
200
12,00 - 1200 m3/h​
25,00 - 2500 m3/h​
60,00 - 6000 m3/h​
250
20,00 - 2000 m3/h​
40,00 - 4000 m3/h​
75,00 - 7500 m3/h​

Abmessungen

DN (NW) D (Wafer)
25

70,5

32

81

40
91
50
105,5
65
126
80
142
100
161
125
191
150
217
200
272
250
327

ZUGEHÖRIGE LINKS

Download

ankara escort çankaya escort
Translate »
Esters-Logo
Datenschutz-Übersicht

Diese Website verwendet Cookies, damit wir dir die bestmögliche Benutzererfahrung bieten können. Cookie-Informationen werden in deinem Browser gespeichert und führen Funktionen aus, wie das Wiedererkennen von dir, wenn du auf unsere Website zurückkehrst, und hilft unserem Team zu verstehen, welche Abschnitte der Website für dich am interessantesten und nützlichsten sind.